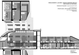
Read Faire Fondre Les Frontieres By Énsa-PB DARIIA KSONDZYK - LOU MAES - GONZALO FERNANDEZ-ABELLAN FAIRE FONDRE LES FRONTIERES DARIIA KSONDZYK - LOU MAES - GONZALO FERNANDEZ-ABELLAN FAIRE FONDRE LES FRONTIERES Less Read the publication