LOCAL DE POMPAGE
Read

LOCAL DE POMPAGE

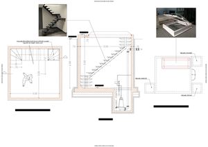
PRODUCED BY AN AUTODESK STUDENT VERSION PUISARD RECUPERATION EAUX CONTRE LAVAGE EQUIPE DE POMPE VIDE CAVE REGARD VIDANGE PRODUCED BY AN AUTODESK STUDENT VERSION PRODUCED BY AN AUTODESK STUDENT VERSION REGARD ARRIVEE REGARD DEPART PRODUCED BY AN AUTODESK... More

Read the publication