Komatsu Pc200(210)(220)(lc) 7 часть 2
By
gcrichtone
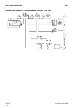
TESTING AND ADJUSTING E-32 Electrical Circuit Diagram for Travel PPC Hydraulic Switch and Travel Alarm 20-550 PC200,210,220(LC)-7
TESTING AND ADJUSTING E-32 Electrical Circuit Diagram for Travel PPC Hydraulic Switch and Travel Alarm 20-550 PC200,210,220(LC)-7