04 DE 01 01 P-7 P-7 PLANO N° PLANO N° REVISIÓN UNIVERSIDAD P-6 RECEPCIÓN P-6 SALÓN COMUNAL Viene de segundo piso Viene de segundo piso BAN Ø4" FACULTAD BAN Ø4" INGENIERÍA Y ARQUITECTURA P-6 Piso Ceramico Sajonia Piso Porcelanato Va hacia primer piso Viene...
More
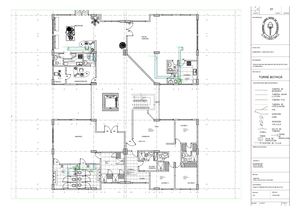
04 DE 01 01 P-7 P-7 PLANO N° PLANO N° REVISIÓN UNIVERSIDAD P-6 RECEPCIÓN P-6 SALÓN COMUNAL Viene de segundo piso Viene de segundo piso BAN Ø4" FACULTAD BAN Ø4" INGENIERÍA Y ARQUITECTURA P-6 Piso Ceramico Sajonia Piso Porcelanato Va hacia primer piso Viene de segundo piso Cuadrada Palazzo Beige 50 x 50cm 60 x 60cm BAN Ø4" BAN Ø4" P-4 PROGRAMA COCINETA Piso Ceramico Sajonia Cuadrada 50 x 50cm TECNOLOGÍA EN DELINEANTE DE ARQUITECTURA E INGENIERÍA BAÑO 1 PROYECTO BAÑO 2 COCINA2 P-6 Piso Cerámico Avellano Tabaco Piso Porcelanato Palazzo Beige TORRE BOYACÁ 30x 60cm Va hacia primer piso BAN Ø4" 60 x 60cm P-6 (Baño) ARCHIVO ADMINISTRACIÓN BAN Ø4" Va hacia primer piso CONVENCIONES RED DE DESAGÜE ALCOBA 1 SALA Piso Emilia Piso Vinílico Multicolor Cara SPC Roble 1 4 mm Única 45.8x45.8 cm 18x122 cm P-6 P-6 (Sala/Comedor) (Alcoba) GIMNASIO COMEDOR P-1 APTO 101 ESPECIFICACIONES Piso Cerámico P-5 Avellano Tabaco 30x 60cm Piso Cerámico (Baño) Avellano Tabaco Piso Cerámico Avellano Tabaco BAÑO 3 30x 60
Less