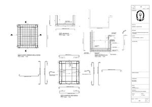
02 DE 01 01 PLANO N° PLANO N° REVISIÓN UNIVERSIDAD 0,40 2,00 0,96 1,16 Varilla #4 C/20 Armado Parrilla A -A' Superior Varilla #4 C/20 1,15 1,72 2,20 FACULTAD 0,30 2,12 INGENIERÍA Y ARQUITECTURA Varilla #4 C/20 L= 5,65 Varilla #4 C/20 L= 2,43 m 0,20 0,10...
More
02 DE 01 01 PLANO N° PLANO N° REVISIÓN UNIVERSIDAD 0,40 2,00 0,96 1,16 Varilla #4 C/20 Armado Parrilla A -A' Superior Varilla #4 C/20 1,15 1,72 2,20 FACULTAD 0,30 2,12 INGENIERÍA Y ARQUITECTURA Varilla #4 C/20 L= 5,65 Varilla #4 C/20 L= 2,43 m 0,20 0,10 0,20 PROGRAMA 28 0, 0,20 Armado Superior TECNOLOGÍA EN DELINEANTE DE ARQUITECTURA 0,10 DFA DESPIECE E INGENIERÍA 0,20 0,20 Losa Varilla #4 PD1 ESC : 1:20 2,27 0,20 0,40 B -B' B -B' Varilla #4 C/20 2,60 1,97 0,20 0,20 0,20 0,20 0,20 0,20 MATERIA: 0,20 0,40 0,50 TALLER DE INGENIERÍA I- GRUPO A 0,20 Varilla #4 C/20 L= 2,15 Varilla #4 C/20 L= 2,10 1,72 0,20 1,80 CONVENCIONES: 1,40 1,61 0,20 Terreno Natural Armadura Muro 0,30 Varilla # 4 Llave Cortante 0,05 0,30 1,60 0,30 0,15 Solado: Concreto de 0,15 A -A' 0,15 Limpieza 0.5 Armado Parrilla Calzos de Apoyo Inferior Varilla # 4 de Parrilla .05 Varilla #4 C/20 L= xx Base Compactada DFA PLANTA ARMADO MALLA BASE DFA DESPIECE A-A' 0,22 0,22 PD1 ESC : 1:20 PD1 ESC : 1:20 0,60 0,60 2,20 0,20 0,22 0
Less