RCS 75" 36.CT.1 36.BS.1 36.ES.1L ARCHITECT TO PROVIDE SINK SPEC 25 FUNSTON RD, KANSAS CITY, KS 66115 PH: 913.281.7373 - RECEPTIONKC@RCSMILLWORK.COM PROJECT: LANSING CFR BP1 301 E. KANSAS AVE. LANSING. KS 66043 DRAWING: 25" 036 MED EXAM 110 CONTRACTOR: SS-1...
More
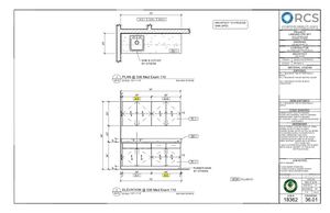
RCS 75" 36.CT.1 36.BS.1 36.ES.1L ARCHITECT TO PROVIDE SINK SPEC 25 FUNSTON RD, KANSAS CITY, KS 66115 PH: 913.281.7373 - RECEPTIONKC@RCSMILLWORK.COM PROJECT: LANSING CFR BP1 301 E. KANSAS AVE. LANSING. KS 66043 DRAWING: 25" 036 MED EXAM 110 CONTRACTOR: SS-1 J.E. DUNN CONSTRUCTION CO ARCHITECT: DLR GROUP 11/9/2018 ISSUED FOR APPROVAL SINK & CUTOUT BY OTHERS 2/27/2019 REVISION: 2 MATERIAL LEGEND: EXPOSED: PL-1: WILSONART 7925-38 "MONTICELLO MAPLE" 1 PLAN @ 036 Med Exam 110 PL-2: WILSONART 4143-60 "NEUTRAL GLACE" 36.01 SCALE: 1/2" = 1'-0" Arch Ref: A1/A102 SS-1: WILSONART 9137RS "BLANCO RIVERSTONE" 74" 2" 36" 36" 36.03 36.04 SEMI-EXPOSED: PL-1: WILSONART 7925-38 "MONTICELLO MAPLE" EDGE BANDING: 30" ADJ ADJ FE CABINET BODY: 3mm PVC BANDING DOORS AND DRAWERS: 3MM PVC BANDING SEMI-EXPOSED: 3MM PVC BANDING PL-1 PL COUNTER: T-MOLD - CHARTER INDUSTRIES 4543 ALMOND HARDWARE: PULLS: HAFELE 115.61.602 128mm ST. STEEL HINGES: BLUM 170° SELF-CLOSING DRAWER SLIDES: WURTH DS PRO 100 SERIES 20" FILE DRA
Less