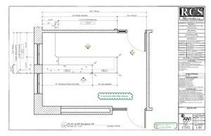
201.5" WALL 145" DESK LENGTH 56.5" SPACE 31.25" 113.75" COUNTER LEG MILLWORK L.C. 25 FUNSTON RD - KANSAS CITY - KS 66115 25" 6.25" 1.CT.2 PH: 913.281.7373 - RECEPTIONKC@RCSMILLWORK.COM PROJECT: 3.25" CHURCH OF THE NATIVITY PH. 1 3800 W 119TH ST LEAWOOD, KS...
More
201.5" WALL 145" DESK LENGTH 56.5" SPACE 31.25" 113.75" COUNTER LEG MILLWORK L.C. 25 FUNSTON RD - KANSAS CITY - KS 66115 25" 6.25" 1.CT.2 PH: 913.281.7373 - RECEPTIONKC@RCSMILLWORK.COM PROJECT: 3.25" CHURCH OF THE NATIVITY PH. 1 3800 W 119TH ST LEAWOOD, KS 66209 DRAWING: 001 RECEPTION 101 CONTRACTOR: STRAUB CONSTRUCTION ARCHITECT: HTK ARCHITECTS 6-30-2017 ISSUED FOR APPROVAL 47.313" 8-25-2017 DSF REVISION 1 62.5" WALL 72.188" COUNTER 3 78.688" DESK DEPTH 1.04 REVISION 2 REVISION 3 1.CT.1 2 7-13-2017 DATE APPROVED 1.03 8-21-2017 DATE FIELD DIMENSIONED " R1 DATE RELEASED TO SHOP MATERIAL LEGEND FJ EXPOSED " R1 PL-1: WILSONART 7984-38 MANGALORE MANGO FINE 31.375" VELVET TEXTURE FINISH PL-2: FORMICA 7264-58 LIME STONE MATTE FINISH SS-1: WILSONART 9040MG BURNT AMBER MIRAGE SOLID COLUMN SURFACE 1/2" X 30" X144" 16.375" ST-1: WILSONART Q3001 SKYE CLIFF QUARTZ 16" 2cm X 55" X 120" WD-1: RIFT RED OAK WD-2: TBD 6.5" ST-1 PL-2 FJ R1 R1 MEL-1: WHITE MELAMINE " " 1 CABINET BODY: .018" PVC BANDING C
Less