(3) A&M SUPPORT BRACKET - 24" x 24" BY RCS RCS 1554 NE 69TH PLACE - ANKENY - IA 50021 515.289.3787 - rcsmillwork@rcsmillwork.com 3 2.02 PROJECT THE POKE COMPANY 306.25" 7" 300 W MLK JR PKWY, SUITE 210 DES MOINES, IA 50309 245.5" - FIELD JOINT WILL BE...
More
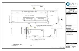
(3) A&M SUPPORT BRACKET - 24" x 24" BY RCS RCS 1554 NE 69TH PLACE - ANKENY - IA 50021 515.289.3787 - rcsmillwork@rcsmillwork.com 3 2.02 PROJECT THE POKE COMPANY 306.25" 7" 300 W MLK JR PKWY, SUITE 210 DES MOINES, IA 50309 245.5" - FIELD JOINT WILL BE REQUIRED AT THIS TOP 60.75" CLEAR ITEM / PREP AREA MILL # 16-33 ARCHITECT / LASKY ARCHITECT P.A. ARCHITECTURAL WOODWORK INSTITUTE GC / EDGE COMMERCIAL 76.25" 85.125" 84.125" MATERIAL LEGEND EXPOSED PL-1= WILSONART D92, DOVE GREY 2.CT.1A 2.CT.1B 2.CT.1C 2.ES.1L 2.CT.2 SS-1= LIVINGSTONE L215, CARBONITE 9.875" 7" FJ FJ .875"R AT ALL CORNERS 37" STAINLESS STEEL DROP-INS STAINLESS STEEL DROP-INS 48.75" 25.25" 45" FJ FJ 5 41.75" 2.03 10.5" 67.25" 12.75" 67.25" FE 9.875" SS-1 " 14 237.5" .3 11 (4) ADJUSTABLE STAINLESS STEEL SUPPORT LEG SEMI-EXPOSED 2 BY RCS 2.02 MEL-1 = WHITE MELAMINE 4 MEL-2 = BLACK MELAMINE 3 2.03 2.10 EDGE BANDING CABINET BODY: .018" PVC TO MATCH DOOR/DWR FRONT: .018" PVC TO MATCH FE SEMI- EXPOSED: BLACK PVC SS-1 COUNTER EDGE:
Less