2 20.02 APPROVED By Chad RCS 1554 NE 69TH PLACE - ANKENY - IA 50021 515.289.3787 - rcsmillwork@rcsmillwork.com 2" 36" PROJECT B&B THEATRES 1580 SW MARKET STREET ANKENY, IA ITEM / HOSTESS STATION MILL # 16-33 ARCHITECT / J. PRICE ARCHITECTURE, INC....
More
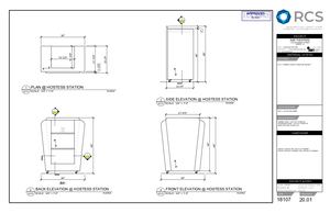
2 20.02 APPROVED By Chad RCS 1554 NE 69TH PLACE - ANKENY - IA 50021 515.289.3787 - rcsmillwork@rcsmillwork.com 2" 36" PROJECT B&B THEATRES 1580 SW MARKET STREET ANKENY, IA ITEM / HOSTESS STATION MILL # 16-33 ARCHITECT / J. PRICE ARCHITECTURE, INC. ARCHITECTURAL WOODWORK INSTITUTE GC / DRA PROPERITES 46" 18.125" 44" MATERIAL LEGEND 21.125" 22.25" 19.125" EXPOSED 1.125" PL-2 = FORMICA 6209-43 "PRESTIGE WALNUT" PLAN @ HOSTESS STATION 22.25" 1 20.01 SCALE : 3/4" = 1'-0" ArchRef 3 SIDE ELEVATION @ HOSTESS STATION 20.01 SCALE : 3/4" = 1'-0" ArchRef SEMI-EXPOSED 1 MEL-2 = BLACK MELAMINE 20.02 27.973" EDGE BANDING CABINET BODY: .018" PVC TO MATCH DOOR/DWR FRONT: .018" PVC TO MATCH SEMI- EXPOSED: BLACK PVC HARDWARE 44" 46" 46" SWIVEL CASTER: HDL JH25 S 2.5" RUBBER SWIVEL CASTER LOCKABLE: HDL JH25 SB 2.5" RUBBER 1 20.03 36" 36" PROJECT NOTES GRADE / CUSTOM ISSUED FOR APPROVAL / 7.20.18 ENGINEER / NB PLOT DATE / 11.6.2018 2 BACK ELEVATION @ HOSTESS STATION 4 FRONT ELEVATION @ HOSTESS STATION PROJ
Less