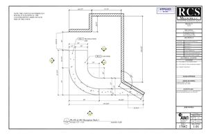
44.375" 57.75" APPROVED By Chad NOTE: THE CURVE IS NOT PERFECTLY ROUND; IT IS ELLIPTICAL. THE COUNTER DEPTH VARIES ON EACH SIDE OF THE CURVE. MILLWORK L.C. 25 FUNSTON RD - KANSAS CITY - KS 66115 PH: 913.281.7373 - RECEPTIONKC@RCSMILLWORK.COM 30.75" PROJECT:...
More
44.375" 57.75" APPROVED By Chad NOTE: THE CURVE IS NOT PERFECTLY ROUND; IT IS ELLIPTICAL. THE COUNTER DEPTH VARIES ON EACH SIDE OF THE CURVE. MILLWORK L.C. 25 FUNSTON RD - KANSAS CITY - KS 66115 PH: 913.281.7373 - RECEPTIONKC@RCSMILLWORK.COM 30.75" PROJECT: LCS DRAWING: 001 RECEPTION DESK 1 CONTRACTOR: ESTES CONSTRUCTION ARCHITECT: SS-1 TRANSACTION ALIGN 36" TOP 05/10/2017 ISSUED FOR APPROVAL 36" 06/12/2017 REVISION 1 12" 24" REVISION 2 129.125" 2 REVISION 3 1.02 DATE APPROVED DATE FIELD DIMENSIONED DATE RELEASED TO SHOP PL-1 COUNTER 34.375" MATERIAL LEGEND 1 1.03 EXPOSED 2 PL-1 WA 4588K-07 "KALAHARI TOPAZ" 23" 1.03 PL-2 WA 7936K-07 "WILLIAMSBURG CHERRY" SS-1 CORIAN "GRANOLA" 87.375" 20" 12 SEMI−EXPOSED 0° " EDGE BANDING 53" CABINET BODY: .018" PVC 21" COUNTERTOP: SELF EDGE 33" HARDWARE: COUNTER SUPPORTS: 18"×24" A&M BRACKET 50" 12" HINGE: BOMMER DOUBLE ACTING 3029 59" 86.426" 145.426" ALIGN JOB NOTES: 1 CUSTOM 1.02 MILL # 16-33 DRAWN KG BY 1 PLAN @ 001 Reception Desk 1 ARCHITECTURAL W
Less