2" 68" 15-CT-1 15-BS-1 17.5" M ILLWORK, L.C. 25 FUNSTON RD, KANSAS CITY, KS 66115 PH: 913.281.7373 - RECEPTIONKC@RCSMILLWORK.COM FAUCETS ANTIQUE K-118-4 BRASS 16" PROJECT: MBTS STUDENT CENTER 25" 5001 NORTH OAK TRAFFICWAY KANSAS CITY, MO 64118 PL-3 DRAWING:...
More
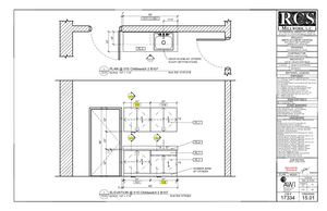
2" 68" 15-CT-1 15-BS-1 17.5" M ILLWORK, L.C. 25 FUNSTON RD, KANSAS CITY, KS 66115 PH: 913.281.7373 - RECEPTIONKC@RCSMILLWORK.COM FAUCETS ANTIQUE K-118-4 BRASS 16" PROJECT: MBTS STUDENT CENTER 25" 5001 NORTH OAK TRAFFICWAY KANSAS CITY, MO 64118 PL-3 DRAWING: 015 CHILDWATCH 2 B107 CONTRACTOR: PEARCE CONSTRUCTION 1 15.01 DROP-IN SINK BY OTHERS ARCHITECT: ELKAY DAYTON D12522 HOLLIS + MILLER ARCHITECTS 3-19-2018 ISSUED FOR APPROVAL 1 PLAN @ 015 Childwatch 2 B107 REVISION # 15.01 SCALE: 1/2" = 1'-0" Arch Ref: A1/A101B MATERIAL LEGEND: EXPOSED: FRP2: MARLITE P 807 BLACK, PEBBLED SURFACE PL-1: WILSONART 7959K-78 "HAMPTON WALNUT" FINEGRAIN FINISH WITH AEON PL-2: WILSONART 4882-38 "OILED SOAPSTONE" FINE VELVET TEXTURE FINISH PL-3: ARBORITE P238-CA "PALERMO ARGILLA" PL-4: FORMICA 7708-58 "FLAX GAUZE" MATTE FINISH P-11: SHERWIN-WILLIAMS SW 7012 "CREAMY" SS-1: CAMBRIA "NEW QUAY" 3cm X 55 1/2" X 122" SS-2: WILSONART 9210CM "EUROPA" 1/2" X 30" X 144" SS-3: CORIAN "DEEP NIGHT SKY" 1/2" X 30" X 144" 3
Less