RCS 1554 NE 69TH PLACE - ANKENY - IA 50021 515.289.3787 - rcsmillwork@rcsmillwork.com WHITE CORIAN PROJECT 1 4/20 x 15 32" PRESS FIT THREAD INSERT ITEM / WHITE CORIAN 28" SIMONSON TABLE MILL # 16-33 ARCHITECT / .177" ARCHITECTURAL WOODWORK INSTITUTE GC /...
More
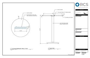
RCS 1554 NE 69TH PLACE - ANKENY - IA 50021 515.289.3787 - rcsmillwork@rcsmillwork.com WHITE CORIAN PROJECT 1 4/20 x 15 32" PRESS FIT THREAD INSERT ITEM / WHITE CORIAN 28" SIMONSON TABLE MILL # 16-33 ARCHITECT / .177" ARCHITECTURAL WOODWORK INSTITUTE GC / ROUTED AND FILLED LOGO MATERIAL LEGEND (NAVY-SEE NICK FOR MATCH) EXPOSED Ø28" .75" 1 8" R EASE w/ 45° BEVEL CAST IRON TABLE BASE (BLACK POWDER COAT) 2.81" 42.75" SEMI-EXPOSED MEL-1 MEL-2 18.016" EDGE BANDING HARDWARE 1 PLAN @ SIMONSON TABLE 2 THUS 1 SECTION 1.01 SCALE : 1-1/2" = 1'-0" REF: 1.01 SCALE : 1-1/2" = 1'-0" REF: PROJECT NOTES GRADE / CUSTOM ISSUED FOR APPROVAL / ENGINEER / PLOT DATE / 2.18.2019 PROJECT MANAGER / REVISION / JOB DRAWING PRELIMINARY 1.01
Less