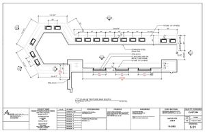
114.167" 2 5.03 36" 55 " STONE - BY OTHERS 3 5.03 336.875" 74" " 67 4.1 36" 36" 36" 36" 36" 36" 36" 67.125" 11 10" 14" 31.125" 38" 60" 28.875" STAINLESS STEEL DRINK RAIL 1 36.425" 5.03 (PNL-03-01) 1 2.25" GLASS SHELVING ON 5.04 METAL TUBE FRAME STONE - BY...
More
114.167" 2 5.03 36" 55 " STONE - BY OTHERS 3 5.03 336.875" 74" " 67 4.1 36" 36" 36" 36" 36" 36" 36" 67.125" 11 10" 14" 31.125" 38" 60" 28.875" STAINLESS STEEL DRINK RAIL 1 36.425" 5.03 (PNL-03-01) 1 2.25" GLASS SHELVING ON 5.04 METAL TUBE FRAME STONE - BY OTHERS 36 11 " 4.1 19" 28" 67 " 38" 4 1 5.03 5.05 57.75" VIF 51" 51" 51" VIF VIF VIF 124.417" 314.125" VIF (PNL-03-01) 1 PLAN @ FEATURE BAR SOUTH 5.01 SCALE : 1/4" = 1'-0" REF: A8/A-3820 QUALITY STANDARD A PROJECT NAME: 2-12-19 1ST DRAFT EDGEBANDING FINISHES HARDWARE CORE MATERIAL Caesars Horseshoe Southern Indiana PULLS: MOCKETT DP54D (SSS) SUBTOP/FRAMING - MARINE GRADE PLYWOOD SUBMITTAL SET 11999 Casino Center Drive CABINET BODY: .018" PVC TO MATCH DOOR/DWR FRONT: .018" PVC TO MATCH SEMI- EXPOSED: BLACK PVC LAM-03-01 = LAMINART "PLATINUM" 2300-T LAM-06-03 = OCTOPUS PROD "BRUSHED BLACK" OCTOLUX BRU 18 PNL-03-01 = SENSITILE SYSTEMS - SPARK ILLUMINATED PANEL HINGES: BLUM 95° THICK DOOR DRAWER SLIDES: WURTH DS-PRO 100 CASEWORK - PLYWOOD
Less