APPROVED By Chad MILLWORK L.C. 1554 NE 69TH PLACE - ANKENY - IA 50021 PH: 515.289.3787 - RCSMILLWORK@RCSMILLWORK.COM PROJECT: STATION 121 121 12th STREET DES MOINES, IA DRAWING: WINDOW TRIM 40" 6" 40" CONTRACTOR: HUBBELL REALITY CO. 2.5" 2.5" ARCHITECT:...
More
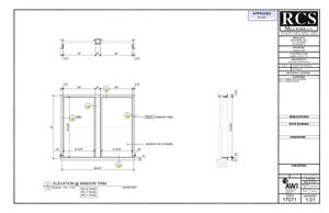
APPROVED By Chad MILLWORK L.C. 1554 NE 69TH PLACE - ANKENY - IA 50021 PH: 515.289.3787 - RCSMILLWORK@RCSMILLWORK.COM PROJECT: STATION 121 121 12th STREET DES MOINES, IA DRAWING: WINDOW TRIM 40" 6" 40" CONTRACTOR: HUBBELL REALITY CO. 2.5" 2.5" ARCHITECT: SHIFFLER & ASSOCIATES 5.25.17 ISSUED FOR APPROVAL REVISION # MATERIAL LEGEND EXPOSED SW-1 = PRIMED SPANISH CEDAR SW-2 = PRIMED POPLAR 2.5" 2.5" 40" 6" 4 40" 2.5" 1.05 1 1.05 2 2 SIM. 1.05 SW-2 WINDOW TRIM SEMI-EXPOSED 1.05 74.625" 74.625" EDGE BANDING 78" HARDWARE: WINDOW: BY OTHERS .75" 37.875" 37.875" .75" 3" .75" 3" 3 1.05 JOB NOTES: 89.25" PLAN INDEX 12.13.2017 CUSTOM MILL # 16-33 2 ELEVATION @ WINDOW TRIM DRAWN Nathan B SCALE : 1/2" = 1'-0" ArchRef A602 BY 1.01 W3 (5 THUS) ARCHITECTURAL WOODWORK P.M. Chad H W4 (7 THUS) INSTITUTE W6 (1 THUS) JOB # DRAWING 17071 1.01
Less