HY-VEE LINCOLN #1 RESTROOMS ARCHITECT / HY-VEE ENGINEERING GC / HY-VEE CONSTRUCTION ENGINEER / J. TIMMONS PLOT DATE / 04/29/19 PROJECT MANAGER / R. WHITHAM GRADE / CUSTOM CORAIN 810P, WHITE FROST CORAIN 810P, WHITE FROST MATERIAL LEGEND INTEGRAL BY RCS...
More
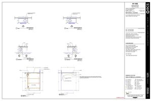
HY-VEE LINCOLN #1 RESTROOMS ARCHITECT / HY-VEE ENGINEERING GC / HY-VEE CONSTRUCTION ENGINEER / J. TIMMONS PLOT DATE / 04/29/19 PROJECT MANAGER / R. WHITHAM GRADE / CUSTOM CORAIN 810P, WHITE FROST CORAIN 810P, WHITE FROST MATERIAL LEGEND INTEGRAL BY RCS INTEGRAL BY RCS EXPOSED PL-23= FORMICA 5883-58, PECAN WOODLINE SSM-02= FORMICA 780, LUNA STONE 52" 52" 1554 NE 69TH PLACE, ANKENY, IA 50021 - 515.289.3787 25" 25" CORIAN 810P 1"R SSM-02 1.CT.1 1.BS.1 1"R 1"R SSM-02 1.CT.2 1.BS.2 1"R 3 4 1.01 1.01 MENS RESTROOM WOMENS RESTROOM 1 PLAN SCALE: 1/2 " = 1 ' 2 PLAN SCALE: 1/2 " = 1 ' SEMI-EXPOSED CABINET PREFIX #1 CABINET PREFIX #2 MEL1 - WHITE MELAMINE MEL2 - BLACK MELAMINE EDGE BANDING CABINET BODY: 3MM PVC TO MATCH DOOR/DWR FRONT: 3MM PVC TO MATCH SEMI-EXPOSED: WHITE PVC COUNTERTOP EDGE: STACKED CONSTRUCTION SPLASH EDGE: FINISHED SOLID SURFACE PL-23 PL-23 SSM-02 SSM-02 HARDWARE PULLS: 4in WIRE TYPE (US26D) HINGES: HETTICH SELEKTA PRO 2000 DRAWER GUIDE: NOT IN SCOPE FILE GUIDE: NOT IN SCOPE 3
Less