71.75" M ILLWORK, L.C. 1" 1554 NE 69TH PLACE, ANKENY, IA 50021 PH: 515.289.3787 - RCSMILLWORK@RCSMILLWORK.COM ST-1 PROJECT: MIDAMERICAN ESC - ALTOONA 21" 2595 34TH AVENUE NW S-1: BY OTHERS S-1: BY OTHERS ALTOONA, IA CUTOUT: BY OTHERS CUTOUT: BY OTHERS...
More
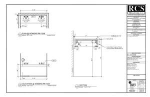
71.75" M ILLWORK, L.C. 1" 1554 NE 69TH PLACE, ANKENY, IA 50021 PH: 515.289.3787 - RCSMILLWORK@RCSMILLWORK.COM ST-1 PROJECT: MIDAMERICAN ESC - ALTOONA 21" 2595 34TH AVENUE NW S-1: BY OTHERS S-1: BY OTHERS ALTOONA, IA CUTOUT: BY OTHERS CUTOUT: BY OTHERS DRAWING: WOMENS RR 1208 CONTRACTOR: 15" ℄ 15" ℄ HANSEN COMPANY, INC ARCHITECT: OPN ISSUED FOR APPROVAL REVISION # 1 PLAN @ WOMENS RR 1208 1" MATERIAL LEGEND: SCALE : 1/2" = 1'-0" ArchRef T1/A151 EXPOSED: 4.01 21" ST-1 2CM TOP ST-1 CAMBRIA KIRKSTEAD 2CM PB SUBTOP 2" 5" 1" .5" 16" 1" 1"x2" STEEL TUBE- ATTACH .75" 1" .75" .75" TO BLOCKING IN END WALLS .75" SEMI-EXPOSED: MEL-1 = WHITE MELAMINE MEL-2 = BLACK MELAMINE EDGE BANDING: 34" CABINET BODY: .018" PVC TO MATCH DOOR/DRAWER FRONT: 3MM PVC TO MATCH 30.5" 1 SEMI-EXPOSED: WHITE PVC COUNTERTOP EDGE: SELF EDGE 4.01 ST-1 HARDWARE: PULLS: MOCKETT DP128 HINGES: 107° SELF-CLOSING 5" DRAWER SLIDES:FR 5210 FILE SLIDES: FULTERER 5755 SUPPORTS: A&M (BLACK) SHELF SUPPORT: KV346 DRAWER PULLS: MESA HC423
Less