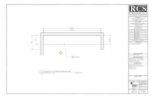
SCALE: 1.01 3/4" = 1'-0" 1 PLAN @ (1) CLOSET STORAGE 104 Arch Ref A2.2 103.063" 16" MEL-1 SHELF 25" 102.813" 15.875" 2 1.02 (1) BREAKROOM, CLST STR 104,112 PL1 = WA 4943-38 "CLASSIC LINEN" PL-2 = WA D96-60 "SHADOW" ---- ---- ---- ---- ---- ---- ---- ----...
More
SCALE: 1.01 3/4" = 1'-0" 1 PLAN @ (1) CLOSET STORAGE 104 Arch Ref A2.2 103.063" 16" MEL-1 SHELF 25" 102.813" 15.875" 2 1.02 (1) BREAKROOM, CLST STR 104,112 PL1 = WA 4943-38 "CLASSIC LINEN" PL-2 = WA D96-60 "SHADOW" ---- ---- ---- ---- ---- ---- ---- ---- ---- MEL-1 - WHITE MELAMINE ---- CABINET BODY: .018" PVC TO MATCH DOOR FRONTS: .018" PVC TO MATCH DRAWER FRONTS: .018" PVC TO MATCH SEMI-EXPOSED: WHITE PVC COUNTER TOP: SELF EDGE PULLS: 4" WIRE TYPE (US26D DRAWER SLIDES: GRASS DRAWER SYS BRACKET: KV 1195 FLANGE: KV 764 COAT ROD: KV 7520 ---- ---- ---- ---- ---- ---- 1.01 ---- ---- ---- JOB # ARCHITECTURAL WOODWORK INSTITUTE DRAWING: CONTRACTOR: ARCHITECT: ISSUED FOR APPROVAL PROJECT: MATERIAL LEGEND EXPOSED HARDWARE: EDGE BANDING MILL # 16-33 DRAWN BY P.M. DRAWING JOB NOTES: SEMI-EXPOSED 1554 NE 69TH PLACE - ANKENY - IA 50021 PH: 515.289.3787 - RCSMILLWORK@RCSMILLWORK.COM PLAN INDEX 7.25.2016 CWBC WAREHOUSE T.I. 810 SE CORPORATE WOODS DR ANKENY, IA 50021 OPUS GROUP OPUS DESIGN GROUP CU
Less