1:50 1:100 A R Q U I T E C T U R A A 813 26/02/201509:52:25a.m./Impresopor:Angel/C:\Users\Angel\Desktop\detalesPorEnviar\250215GvpProyectoDreamsDetalleDeMaletero.dwg 26-feb-15 Hotel Dreams Los Cabos Plano Llave Notas Generales REVISO DIBUJOIM / GP Proyecto...
More
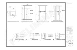
1:50 1:100 A R Q U I T E C T U R A A 813 26/02/201509:52:25a.m./Impresopor:Angel/C:\Users\Angel\Desktop\detalesPorEnviar\250215GvpProyectoDreamsDetalleDeMaletero.dwg 26-feb-15 Hotel Dreams Los Cabos Plano Llave Notas Generales REVISO DIBUJOIM / GP Proyecto Propietario: Simbologia Proyecto Arquitectonico Revisiones 5 1:1 Vista corte Tubo oval y brida 7 1:1 Cerramiento de puerta 26/02/201509:52:26a.m./Impresopor:Angel/C:\Users\Angel\Desktop\detalesPorEnviar\250215GvpProyectoDreamsDetalleDeMaletero.dwg 26-feb-15 1 1:20 Planta Maletero 2 1:20 Alzado frontal y puerta 3 1:20 Alzado interior 4 1:20 Corte c 6 1:1 vista lateral de repisa 1 C 8 1:1 vista lateral tubo oval y brida
Less